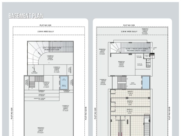
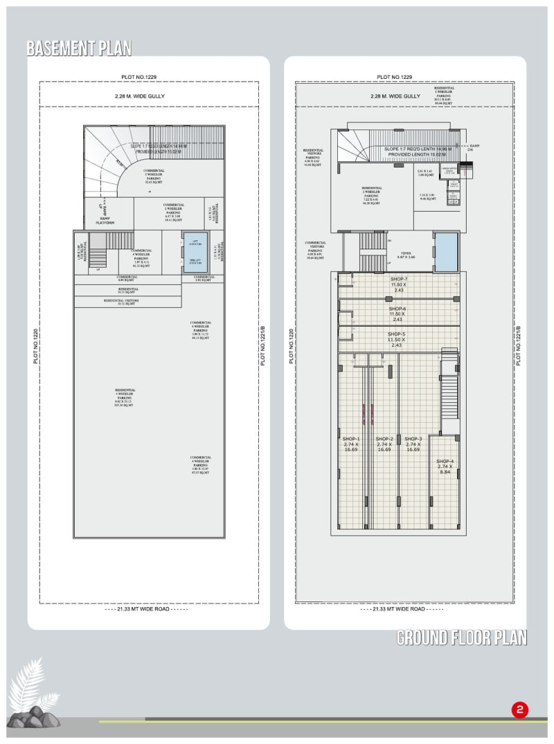
Suvarnabhumi Enclave is a mixed development real estate project developed by Suvarnabhumi Infrabuild Llp, strategically located at Plot No 1221/a, City Survey No 2742-2743, Ward No 6, Sheet No 246, Ghogha Circle, Bhavnagar, Bhavnagar, 364001. This RERA-registered property (Registration No: PR/GJ/BHAVNAGAR/BHAVNAGAR/Bhavnagar Municipal Corporation/MAA16438/070226/301127). Mixed Development At Plot No 1221/a Sur No 2742-2743, Ward No 6 Sheet No 246, Ghogha Circle, Krishnanagar, Bhavnagar 364004
The project is professionally designed by Hemalkumar Bhupendrabhai Bhatt and engineered by Bhavesh Kapilray Vyas, ensuring quality construction and adherence to all regulatory standards. For more information about this property, interested buyers can contact Suvarnabhumi Infrabuild Llp directly at 9909919999.










